MRT294 Grúa Torre Topless
Email: info@nicoletti-caribe.com | Teléfono: +1 849 409 0710 | Whatsapp: +1 849 409 0710


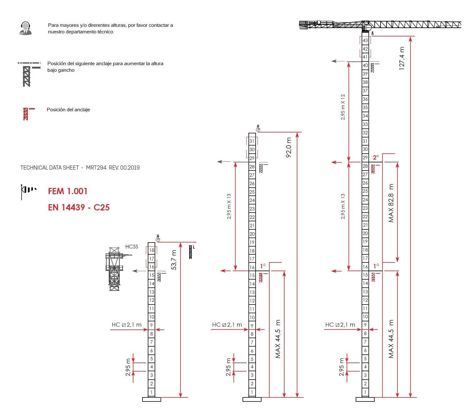
La MRT294 Grúa Torre Topless con HUH 62.5 m capacidad máxima de 16 ton, radio máximo 76 m y una altura hasta(2) 127.4 m; es uno de los modelos mas populares, entre los contratistas generales y desarrolladores, en obras con sistemas prefabricados.
Dos de las características más atractivas de la MRT294 son: su capacidad máxima de elevación y sus 3.5 ton de carga a 70 metros. Este equipo sigue siendo uno de los modelos más vendidos debido a su capacidad de elevación y su durabilidad en diferentes climas.
Hay dos versiones disponibles, con carga máxima de elevación de 14 Ton y 16 Ton y cada una con una amplia gama de configuraciones, para adaptarse a los requerimientos de los proyectos mas exigentes.
| DATOS TECNICOS | |
|---|---|
| Modelo | MRT294 |
| Altura bajo gancho (1)(2) | 57.9 m EN14439.C25 57.9 m FEM1.001 |
| Carga Máxima | 16.0 Ton |
| Radio máximo | 76.0 m |
| Altura de torre | |
| Carga @ radio máximo | 2.58 Ton |
| Lineas | 2/4 (Simple/Doble Retorno) |
| Motor de elevación | 73.5 kW (100.0 hp) |
| Motor de giro | 4.0 kW (5.5 hp) |
| Motor de carro viajero | 6.6 kW (9.0 hp) |
| Alimentación | 400V Trifásico 50Hz (UE) 440V Trifásico 60Hz |
Notas:
(1) Altura útil auto estable, City Tower / HC5s Tower: 2.10 m | HUH 62.5 m. Alturas superiores disponibles con Torre BOOSTER o tramos base de mayores dimensiones (EN 14439 C25 D25 – FEM 1.001).
(2) Consultar catálogo técnico y/o Departamento Técnico para mayores alturas disponibles.
Mecanismos de accionamiento

Ventajas de las Grúas Torre Serie Topless
PRODUCTIVIDAD | DURABILIDAD | CONFIABILIDAD | FACIL OPERACION Y MANTENIMIENTO
Un objetivo fundamental en el diseño de nuestras grúas es mantener el equilibrio óptimo entre rendimiento, ciclo de vida, productividad, confiabilidad, fácil acceso al servicio e intervalos de mantenimiento más bajos.
El pilar de diseño y producción clave es: priorizar la comodidad y la facilidad de uso del operador, en todas nuestras grúas.
CALIDAD | SEGURIDAD
Diseñadas de acuerdo con los estándares Clase A4 FEM1001. Esta norma evalúa el ciclo de vida de una grúa y considera dos factores principales: el tiempo de actividad del equipo y el grado de funcionalidad (porcentaje de la carga de trabajo nominal máxima real). Una clase A4 corresponde al doble del ciclo de vida útil del correspondiente a la clase A3.
Para implementar y garantizar los más altos niveles de seguridad hemos incorporado la última referencia europea, EN14439, vinculada a una mayor y variable exposición a la fuerza del viento. Esta norma incorpora mayor seguridad en los sitios de construcción y mejores condiciones de trabajo para los operadores y los técnicos.

Descarga el catálogo aquí:


Curvas de Carga ULift


Climbing Crane – Grúa MRT294 Escaladora

Accesorios para Grúas Torre (Opcional)
Podría interesarle

© 2025 Derechos Reservados – Nicoletti-Caribe™
Consulta nuestro Aviso de Privacidad
Powered by WordPress
Síguenos








